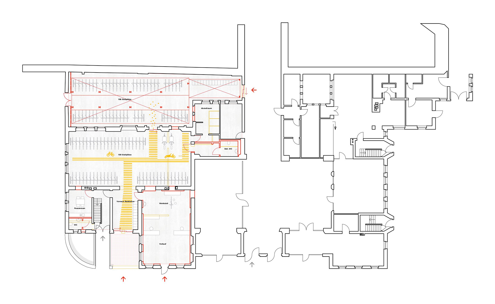
Im Bestandsgebäude des Ahlener Bahnhofs - in den Räumlichkeiten einer früheren Diskothek - wurde eine Radstation mit rund 200 Einstellplätzen integriert. In etwa die Hälfte der Doppelstockparker wurde im Innenhof zwischen Gebäude und Ankermauer des Gleisbettes eingefügt unter einer neuen, lichtdurchfluteten Dachkonstruktion. Durch die Reaktivierung des zuvor vollkommen zugewachsenen Hofes und die Integration einer Gitterostbrücke als Zugang vom Bahnhofsvorplatz wurde ein neuer öffentlicher Weg durch das Bahnhofsgebäude geschaffen, welcher auch die angrenzenden Außenbereiche aufwertet. Der Farbton RAL 1023 begleitet die BesucherInnen entlang dieses Weges.
PROJEKTDATEN
Standort: Bahnhof in Ahlen (Westf.)
Auftraggeber:  Stadt Ahlen, ZGM
Betreiber:  Caritasverband Ahlen, Drensteinfurt und Sendenhorst e.V.
Verfahren:  UVgO
Nutzung: Radstation
Back to Top